Trilocale in vendita

Venezia, Corso del Popolo - Mestre
€ 225.000
3 locali 3 locali
126 Mq 126 Mq
2 bagni 2 bagni

Trilocale in vendita

Venezia, Corso del Popolo - Mestre

Descrizione annuncio

L’immobile in oggetto è situato al quinto piano di un edificio in buono stato di manutenzione, servito da ascensore, in zona Corso del Popolo. La posizione è particolarmente apprezzata per la sua comodità e per la vicinanza a tutti i principali servizi, a pochi passi si trovano Piazza Ferretto e Piazza Barche, importanti punti di riferimento cittadini, ricchi di negozi, attività commerciali, farmacie, tabaccherie, bar e ristoranti. Nelle immediate vicinanze sono inoltre presenti un supermercato Pam e il rinomato centro commerciale Coin.

Dal punto di vista dei collegamenti, la zona risulta estremamente favorevole grazie alla facile accessibilità ai mezzi di trasporto pubblico, fermate di autobus e tram sono raggiungibili in pochi minuti a piedi e garantiscono collegamenti diretti e frequenti con il centro storico di Venezia e con le principali località limitrofe.

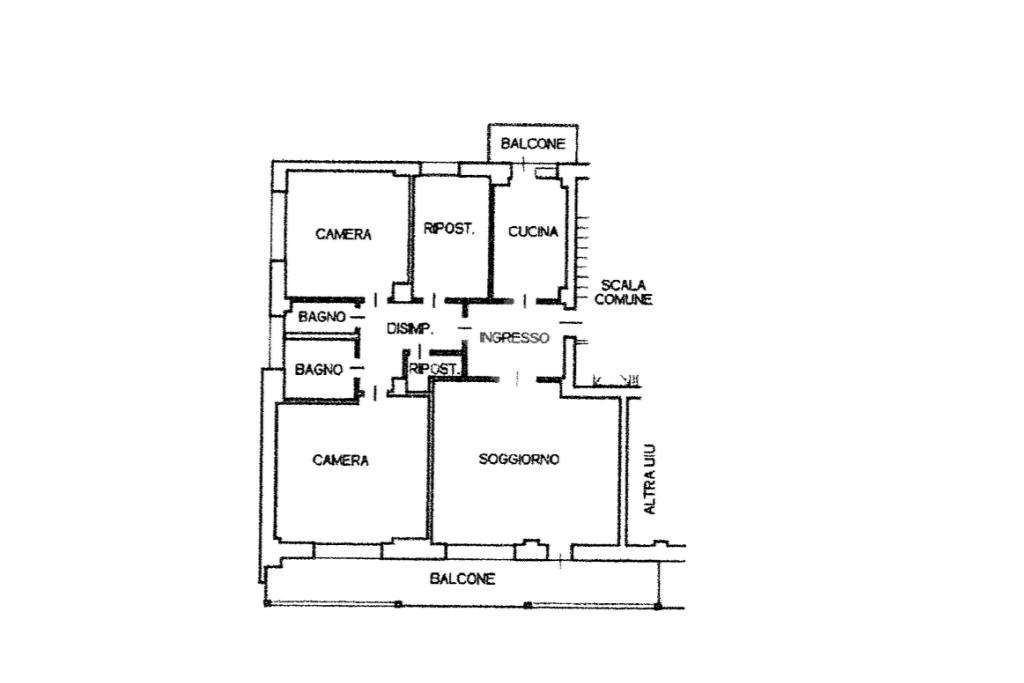
Varcata la soglia d’ingresso, dotata di porta blindata, si accede a un comodo andito che distribuisce in modo funzionale tutti gli ambienti dell’abitazione.

La zona giorno è composta da un luminoso soggiorno di buone dimensioni, con accesso a un terrazzo, e da una cucina abitabile separata, anch’essa servita da un grazioso balcone.

La zona notte, ben distinta dalla zona giorno, si sviluppa in due camere da letto di generose dimensioni: una matrimoniale e una singola. Completano la proprietà due bagni entrambi finestrati, un pratico ripostiglio e un ulteriore stanza, ideale per la realizzazione di una terza camera da letto.

L’abitazione è stata oggetto di recenti interventi di ristrutturazione, che hanno interessato gli impianti elettrico e idraulico nel 2026, oltre all’installazione di un nuovo impianto di climatizzazione. A livello condominiale, sono stati rifatti il tetto e le terrazze nel 2022.

La soluzione dispone di una soffitta al piano ultimo e si presta perfettamente a un nucleo familiare fino a quattro persone, alla ricerca di un’abitazione tranquilla, già pronta all’uso e situata in una posizione strategica, a pochi passi da Piazza Ferretto e da tutti i principali servizi.

Mostra tutto

Nelle vicinanze

Trasporto pubblico Trasporto pubblico
stazione di Venezia Mestre
stazione di Venezia Mestre
1,1 Km
stazione di Venezia Porto Marghera
stazione di Venezia Porto Marghera
2,0 Km
Villa Erizzo
Villa Erizzo
290 m
Olivi
Olivi
370 m
Corso del Popolo Milano
Corso del Popolo Milano
50 m
Ricariche auto elettriche Ricariche auto elettriche
Via Forte Marghera
420 m
Piazzale Donatori Di Sangue
450 m
Mestre Parco Ponci | EnelX
750 m
Sede Enel Mestre | EnelX
910 m
Mestre Col di Lana | EnelX
990 m
Scuole Scuole
Liceo Artistico Statale "Michelangelo Guggenheim" (succursale di corso del popolo)
210 m
Liceo Classico "Raimondo Franchetti"
330 m
Scuola Giulio Cesare
470 m
Scuole
480 m
Scuola Elementare G. Cesare - Scuola Materna Silvio Pellico
530 m
Farmacia Farmacia
Farmacia Rigamonti
120 m
Farmacia Zamparo
230 m
Farmacia Menis
370 m
Farmacia delle Barche
460 m
Farmacia Centrale
540 m
Ospedali Ospedali
Policlinico San Marco
670 m
Servizio tossicodipendenze e alcologia
2,6 Km
Supermercati Supermercati
Pam Local Corso del Popolo
10 m
Coop
190 m
Pam
450 m
Simply
510 m
Interspar
620 m
Negozi Negozi
Gorghetto
340 m
Negozi
360 m
Mercato Coperto di CAMPAGNA AMICA - Azienda agricola Basso
630 m
Panificio da Luca
1,0 Km
Panificio Maritan
1,2 Km
Bar Bar
Carpe Diem
180 m
Al Tarlo
360 m
Bar
420 m
Esquina de Luxe
580 m
Bar Galleria
580 m
Ristoranti Ristoranti
Ristosnack
130 m
El Fritoin
300 m
Dalle Pizzaiole
400 m
9 Bistrot
430 m
Hostaria Vite Rossa
430 m
Mostra tutto

Caratteristiche

Rif.:
61194348
Piano:
5 di 7 con ascensore (Piano alto)
Balconi:
1
Terrazzi:
1
Camere da letto:
2
Arredamento:
Parziale
Mostra tutto
Prezzo Prezzo
€ 225.000
Rata mutuo Rata mutuo
€ 1.069 / mese
Spese annue Spese annue
€ 1.500
Proponi il tuo prezzoProponi il tuo prezzo
Immobile valutato con T·Valuta

Classe Energetica

E
E
E
E
E
E
E
E
E
EP globale non rinnovabile:
80.14 kW h/m² anno
EP globale rinnovabile:
80.39 kW h/m² anno
EP invernale del fabbricato:
EP estiva del fabbricato:
Anno di costruzione:
1964
Riscaldamento:
Centralizzato
Tipo impianto:
A radiatori
Tipo alimentazione:
Metano

Ti interessa visionare l'immobile?

Fissa un appuntamento  Fissa un appuntamento

Richiedi informazioni

Clicca su Leggi per aprire l'informativa
* Questi campi sono obbligatori

Calcola il tuo mutuo

Semplice e senza impegno
Anticipo

( % )
Mutuo

( % )

pochi semplici passi

inserisci i tuoi dati
Questionario completato
Grazie per aver richiesto un appuntamento senza impegno con un nostro Consulente del Credito e Assicurativo.

Hai inserito correttamente tutti i dati necessari e a breve riceverai una e-mail con un link da convalidare per inviare i tuoi dati.
Affiliato
Mes One Sas
P.le Luigi Candiani, 33 30174 Venezia (VE)

Il nostro staff


  • Jacopo Mura
    Affiliato

  • Marco Carminati
    Affiliato

  • Vanessa Hasaj
    Coordinatrice

  • Simone Scarpa
    Collaboratore
P.le Luigi Candiani, 33 30174 Venezia (VE)
Zona: Mestre Centro-Cipressina
Mostra su mappa
Affiliato
Mes One Sas
P.le Luigi Candiani, 33 30174 Venezia (VE)

2026 Tecnocasa Franchising S.p.A. - P. IVA 08365160152 - Via Monte Bianco 60/A 20089 Rozzano (MI). Ogni agenzia ha un proprio titolare ed è autonoma. Privacy policy | Policy utilizzo | Cookie policy