Quadrilocale in vendita

Venezia, Via Oslavia - Mestre
€ 176.000
Prezzo aggiornato
4 locali 4 locali
125 Mq 125 Mq
1 bagno 1 bagno

Quadrilocale in vendita

Venezia, Via Oslavia - Mestre

Descrizione annuncio

L’immobile in oggetto è situato al quarto ed ultimo piano di un fabbricato in ottimo stato di manutenzione, recentemente sottoposto ad interventi di ristrutturazione che hanno riguardato il rifacimento dei balconi e del tetto. L’edificio si trova nella tranquilla e servita zona del Piraghetto, più precisamente in Via Oslavia. La posizione è considerata estremamente strategica e comoda, grazie alla prossimità dei principali mezzi di trasporto che consentono di raggiungere con facilità il centro storico di Venezia. Inoltre, la non lontana stazione ferroviaria permette di spostarsi agevolmente verso i principali centri, come Padova, Treviso e Verona. Nelle immediate vicinanze dell’immobile sono presenti numerosi servizi di prima necessita tra cui, negozi, botteghe alimentari, farmacie, tabaccherie ec il vicino supermercato “Alì”.

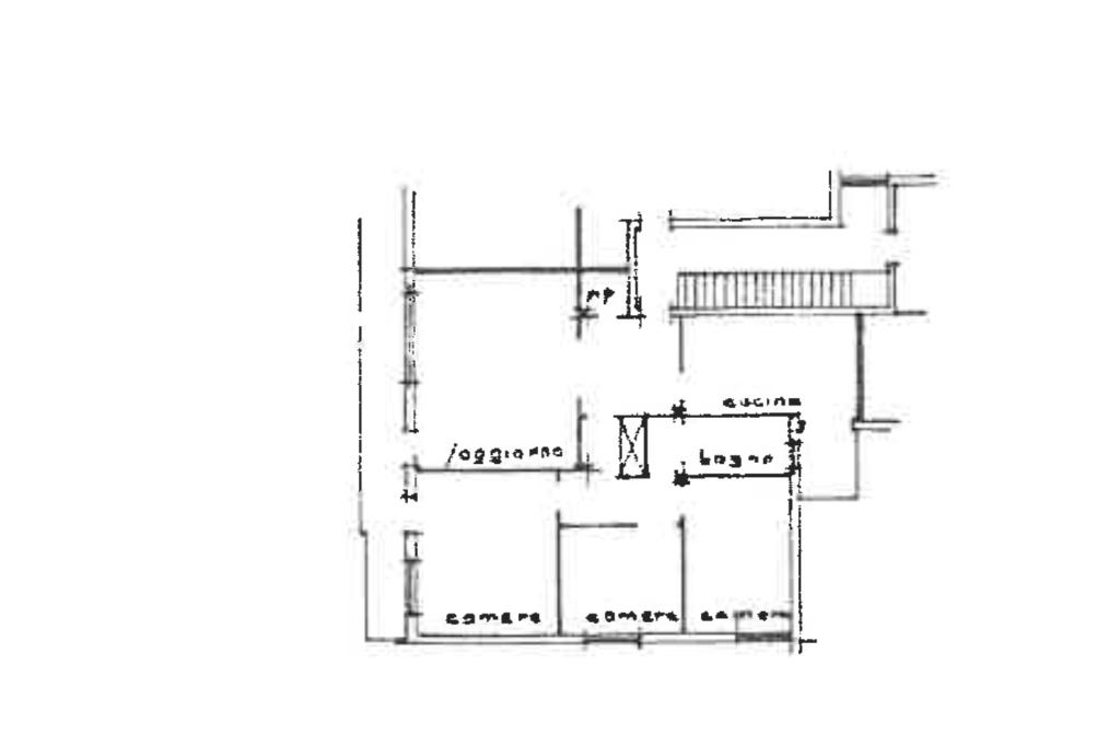
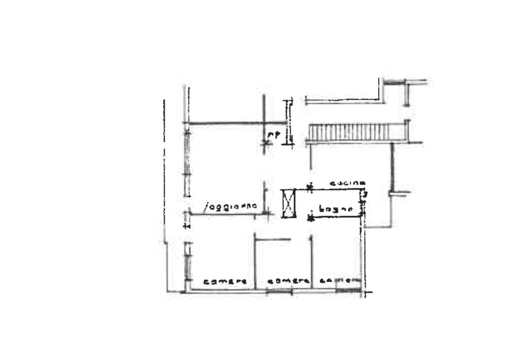
Appena varcata la soglia d’ingresso, debitamente munita di porta blindata, ad accoglierci troviamo un ampio ingresso che ci conduce a tutti gli ambienti facenti parte della soluzione.

La zona giorno si distingue per un luminoso soggiorno di generose dimensioni, servito da un ampio terrazzo, e da una spaziosa cucina abitabile, anch’essa corredata da un grazioso balcone. La zona notte, ben separata dalla zona giorno, è composta da tre camere da letto, una matrimoniale e due ampie singole, oltre a un bagno finestrato con vasca e a un comodo ripostiglio.

L’appartamento è stato oggetto negli anni di alcuni interventi di ristrutturazione che hanno coinvolto, il rinnovo degli impianti nel 2014, la sostituzione dei serramenti nel 2005 e l’installazione dei condizionatori nel 2022.

Completano la proprietà un garage al piano terra e un posto auto esterno.
La soluzione si adatta perfettamente alle esigenze di un nucleo familiare fino a quattro persone, alla ricerca di un’abitazione spaziosa, funzionale e situata in una zona tranquilla, ma al tempo stesso comoda ai principali servizi e al centro cittadino.

Mostra tutto

Nelle vicinanze

Trasporto pubblico Trasporto pubblico
stazione di Venezia Mestre
stazione di Venezia Mestre
710 m
Venezia Carpenedo
Venezia Carpenedo
2,5 Km
Sernaglia
Sernaglia
790 m
Villa Erizzo
Villa Erizzo
970 m
Miranese Monteverdi
Miranese Monteverdi
280 m
Ricariche auto elettriche Ricariche auto elettriche
Mestre Col di Lana | EnelX
590 m
Piazzale Donatori Di Sangue
900 m
Mestre Ulloa | EnelX
940 m
Parcheggio Einaudi
1,1 Km
Hotel Apogia Sirio Venice Mestre
1,2 Km
Scuole Scuole
Istituto Comprensivo "Francesco Querini"
180 m
Scuole
720 m
Scuola Giulio Cesare
720 m
Liceo Classico "Raimondo Franchetti"
1,0 Km
Liceo Artistico Statale "Michelangelo Guggenheim" (succursale di corso del popolo)
1,0 Km
Farmacia Farmacia
Farmacia "Ai due Gigli"
300 m
Farmacia Magnaguagno
410 m
Farmacia all'Europa
450 m
Alla stazione farmacia
570 m
Farmacia Menis
800 m
Ospedali Ospedali
Servizio tossicodipendenze e alcologia
1,5 Km
Policlinico San Marco
1,7 Km
Ospedale dell'Angelo
2,8 Km
Pronto Soccorso Ospedale dell'Angelo
2,9 Km
Supermercati Supermercati
inCoop
160 m
Supermercati
380 m
Alì
540 m
Simply
810 m
Aliper
970 m
Negozi Negozi
Negozi
720 m
Meem Alimentari
1,1 Km
Gorghetto
1,2 Km
Mercato Coperto di CAMPAGNA AMICA - Azienda agricola Basso
1,3 Km
Panificio F.lli Rizzo
1,4 Km
Bar Bar
Bar
450 m
Al Tarlo
810 m
Bar Galleria
1,0 Km
Stendardo
1,2 Km
Esquina de Luxe
1,3 Km
Ristoranti Ristoranti
Bigoli e bagoli Mestre
360 m
Ristopub da Luca
380 m
Bar Ristorante San Marco
500 m
Al Piron d'Oro
530 m
Restaurante di Moro
590 m
Mostra tutto

Caratteristiche

Rif.:
61127639
Piano:
4 di 4 (ultimo Piano)
Box:
1
Posti auto:
1
Balconi:
1
Terrazzi:
1
Mostra tutto
Prezzo Prezzo
€ 176.000
Rata mutuo Rata mutuo
€ 830 / mese
Spese annue Spese annue
€ 1.500
Proponi il tuo prezzoProponi il tuo prezzo
Immobile valutato con T·Valuta

Classe Energetica

E
E
E
E
E
E
E
E
E
EP globale non rinnovabile:
139.09 kW h/m² anno
EP globale rinnovabile:
30.09 kW h/m² anno
EP invernale del fabbricato:
EP estiva del fabbricato:
Anno di costruzione:
1969
Riscaldamento:
Centralizzato
Tipo impianto:
A radiatori
Tipo alimentazione:
Metano

Prezzo ridotto di €1 (4%%)

Ti interessa visionare l'immobile?

Fissa un appuntamento  Fissa un appuntamento

Richiedi informazioni

Clicca su Leggi per aprire l'informativa
* Questi campi sono obbligatori

Calcola il tuo mutuo

Semplice e senza impegno
Anticipo

( % )
Mutuo

( % )

pochi semplici passi

inserisci i tuoi dati
Questionario completato
Grazie per aver richiesto un appuntamento senza impegno con un nostro Consulente del Credito e Assicurativo.

Hai inserito correttamente tutti i dati necessari e a breve riceverai una e-mail con un link da convalidare per inviare i tuoi dati.
Affiliato
Mes One Sas
P.le Luigi Candiani, 33 30174 Venezia (VE)

Il nostro staff


  • Jacopo Mura
    Affiliato

  • Marco Carminati
    Affiliato

  • Vanessa Hasaj
    Coordinatrice

  • Simone Scarpa
    Collaboratore
P.le Luigi Candiani, 33 30174 Venezia (VE)
Zona: Mestre Centro-Cipressina
Mostra su mappa
Affiliato
Mes One Sas
P.le Luigi Candiani, 33 30174 Venezia (VE)

2025 Tecnocasa Franchising S.p.A. - P. IVA 08365160152 - Via Monte Bianco 60/A 20089 Rozzano (MI). Ogni agenzia ha un proprio titolare ed è autonoma. Privacy policy | Policy utilizzo | Cookie policy