Bilocale in vendita

Venezia, P.za XXVII Ottobre - Mestre
€ 137.000
2 locali 2 locali
53 Mq 53 Mq
1 bagno 1 bagno

Bilocale in vendita

Venezia, P.za XXVII Ottobre - Mestre

Descrizione annuncio

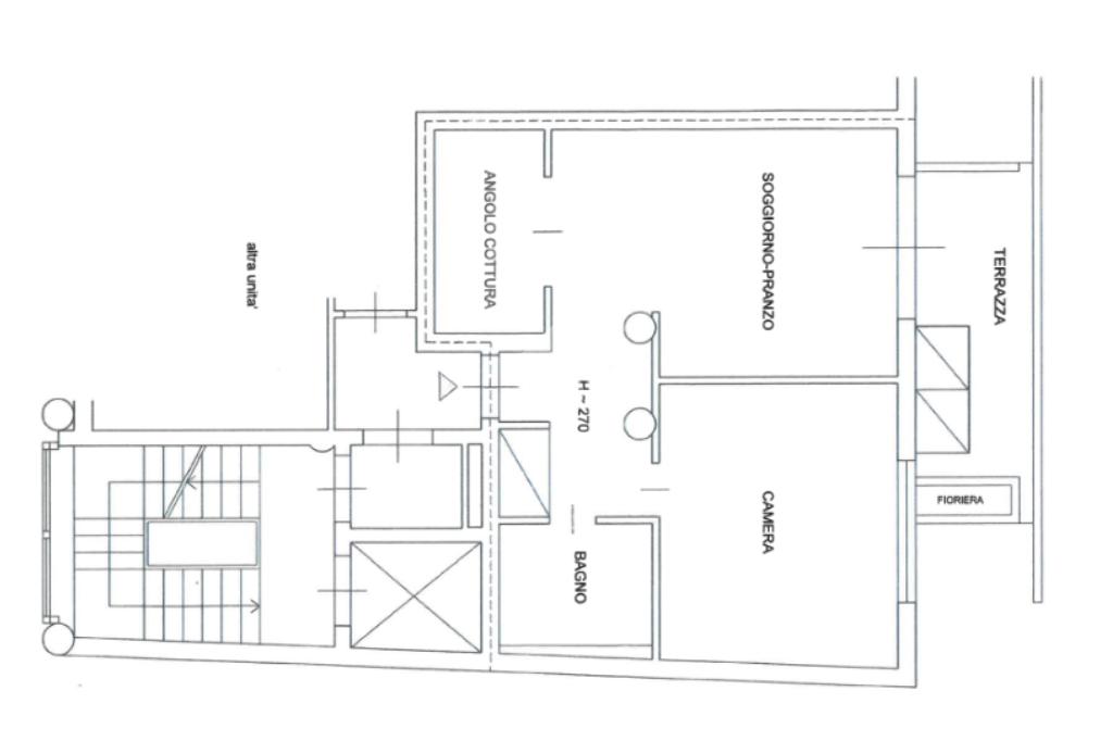
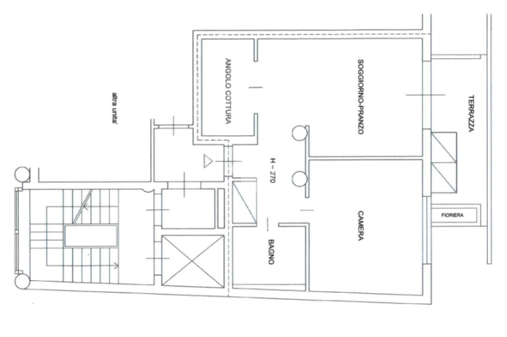
L'immobile in oggetto è posto al secondo piano di una palazzina in ottimo stato di manutenzione, dotata di ascensore, ubicata in Piazza XXVII Ottobre, nel cuore di Mestre. La posizione risulta particolarmente strategica, grazie alla vicinanza con Piazza Ferretto e Piazza Barche, zone centrali della città che offrono un'ampia gamma di servizi, attività comerciali, e punti di interesse urbano. L'area è ottimamente servita dai mezzi pubblici, con fermate di autobus e tram a pochi passi dall'edificio, che garantiscono collegamenti rapidi e diretti con il centro storico di Venezia, la stazione ferroviaria di Mestre e le principali località limitrofe. Nelle immediate vicinanze si trovano numerosi negozi e servizi di ogni genere: botteghe, tabaccherie, farmacie, ristoranti, bar, istituti scolastici ed il rinomato centro commerciale 'Le Barche'.

Varcata la soglia d'ingresso, debitamente munita di porta blindata, si accede ad un accogliente disimpegno che consente un comodo accesso a tutti gli ambienti principali dell'immobile.

Alla sinistra dell'ingresso si sviluppa la zona giorno, un ambiente luminoso e ben distribuito composto da un soggiorno con angolo cottura dal quale si accede ad un grazioso terrazzo di buone dimensioni che affaccia direttamente sul cortile condominiale.

La zona notte, collocata sulla destra dell'ingresso, è composta da una spaziosa camera matrimoniale ed un comodo bagno dotato di box doccia.

L'appartamento rappresenta una soluzione abitativa ideale per single o coppie, alla ricerca di un contesto centrale, comodo e ben servito, senza rinunciare alla tranquillità. Grazie alla posizione privilegiata, costituisce inoltre un ottimo investimento per chi desidera un immobile a reddito o un pratico punto d'appoggio nel cuore di Mestre.

Mostra tutto

Nelle vicinanze

Trasporto pubblico Trasporto pubblico
stazione di Venezia Mestre
stazione di Venezia Mestre
1,5 Km
Venezia Carpenedo
Venezia Carpenedo
1,6 Km
Olivi
Olivi
240 m
Villa Erizzo
Villa Erizzo
390 m
Edicola 27 Ottobre D2
Edicola 27 Ottobre D2
10 m
Ricariche auto elettriche Ricariche auto elettriche
Via Forte Marghera
100 m
Mestre Parco Ponci | EnelX
280 m
Piazzale Donatori Di Sangue
430 m
Mestre Einaudi | EnelX
700 m
Parcheggio Santa Maria dei Battuti | EnelX
720 m
Scuole Scuole
Istituto Tecnico Industriale "Antonio Pacinotti"
540 m
Liceo Artistico Statale "Michelangelo Guggenheim" (succursale di corso del popolo)
680 m
I.T.I.S. "Carlo Zuccante" (Sede biennio)
680 m
Circolo didattico Viale San Marco
780 m
Liceo Classico "Raimondo Franchetti"
800 m
Farmacia Farmacia
Farmacia delle Barche
120 m
Farmacia Brusadini
290 m
Graziati
300 m
Farmacia Centrale
340 m
Farmacia Rigamonti
350 m
Ospedali Ospedali
Policlinico San Marco
320 m
Servizio tossicodipendenze e alcologia
2,8 Km
Ospedale dell'Angelo
2,9 Km
Pronto Soccorso Ospedale dell'Angelo
2,9 Km
Supermercati Supermercati
Coop
290 m
Alì Supermercati
400 m
Pam Local Corso del Popolo
480 m
Simply
520 m
Spak
680 m
Negozi Negozi
Gorghetto
180 m
Mercato Coperto di CAMPAGNA AMICA - Azienda agricola Basso
190 m
Panificio da Luca
650 m
Negozi
690 m
Pam Local
810 m
Bar Bar
La Chiocciola
180 m
Esquina de Luxe
180 m
Garden Bar
210 m
Stendardo
320 m
Bar Galleria
390 m
Ristoranti Ristoranti
Ristorante Pizzeria Aladino
230 m
Pizzeria Aladdin
230 m
Fratelli la Bufala
240 m
Bistrot 55
240 m
El Fritoin
250 m
Mostra tutto

Caratteristiche

Rif.:
61127189
Piano:
2 di 8 con ascensore (Piano medio)
Terrazzi:
1
Camere da letto:
1
Arredamento:
Parziale
Condizionamento:
Autonomo
Mostra tutto
Prezzo Prezzo
€ 137.000
Rata mutuo Rata mutuo
€ 646 / mese
Spese annue Spese annue
€ 1.500
Proponi il tuo prezzoProponi il tuo prezzo
Immobile valutato con T·Valuta

Classe Energetica

E
E
E
E
E
E
E
E
E
EP globale non rinnovabile:
212.45 kW h/m² anno
EP invernale del fabbricato:
EP estiva del fabbricato:
Anno di costruzione:
1992
Riscaldamento:
Centralizzato
Tipo impianto:
A radiatori
Tipo alimentazione:
Metano

Ti interessa visionare l'immobile?

Fissa un appuntamento  Fissa un appuntamento

Richiedi informazioni

Clicca su Leggi per aprire l'informativa
* Questi campi sono obbligatori

Calcola il tuo mutuo

Semplice e senza impegno
Anticipo

( % )
Mutuo

( % )

pochi semplici passi

inserisci i tuoi dati
Questionario completato
Grazie per aver richiesto un appuntamento senza impegno con un nostro Consulente del Credito e Assicurativo.

Hai inserito correttamente tutti i dati necessari e a breve riceverai una e-mail con un link da convalidare per inviare i tuoi dati.
Affiliato
Mes One Sas
P.le Luigi Candiani, 33 30174 Venezia (VE)

Il nostro staff


  • Jacopo Mura
    Affiliato

  • Marco Carminati
    Affiliato

  • Vanessa Hasaj
    Coordinatrice

  • Simone Scarpa
    Collaboratore
P.le Luigi Candiani, 33 30174 Venezia (VE)
Zona: Mestre Centro-Cipressina
Mostra su mappa
Affiliato
Mes One Sas
P.le Luigi Candiani, 33 30174 Venezia (VE)

2026 Tecnocasa Franchising S.p.A. - P. IVA 08365160152 - Via Monte Bianco 60/A 20089 Rozzano (MI). Ogni agenzia ha un proprio titolare ed è autonoma. Privacy policy | Policy utilizzo | Cookie policy